Van blauwdruk tot beleving: zo ontwerpen we jouw woning.

Bij Buro Maak geloven we dat een goed ontwerp begint met een grondige voorbereiding. Elk ontwerptraject, of het nu een herbestemming, renovatie of nieuwbouw betreft, start met een analyse van wat er al is. Hoe is een gebouw ooit bedoeld? Hoe wordt het nu gebruikt? En hoe kan het beter? In deze blog nemen we je mee in onze ontwerpworkflow, van archiefonderzoek tot 3D-visualisatie, en laten we zien hoe wij stap voor stap tot een doordachte indeling komen. Of je nu potentiële opdrachtgever bent of student aan de master Architectuur: dit is hoe wij ontwerpen.

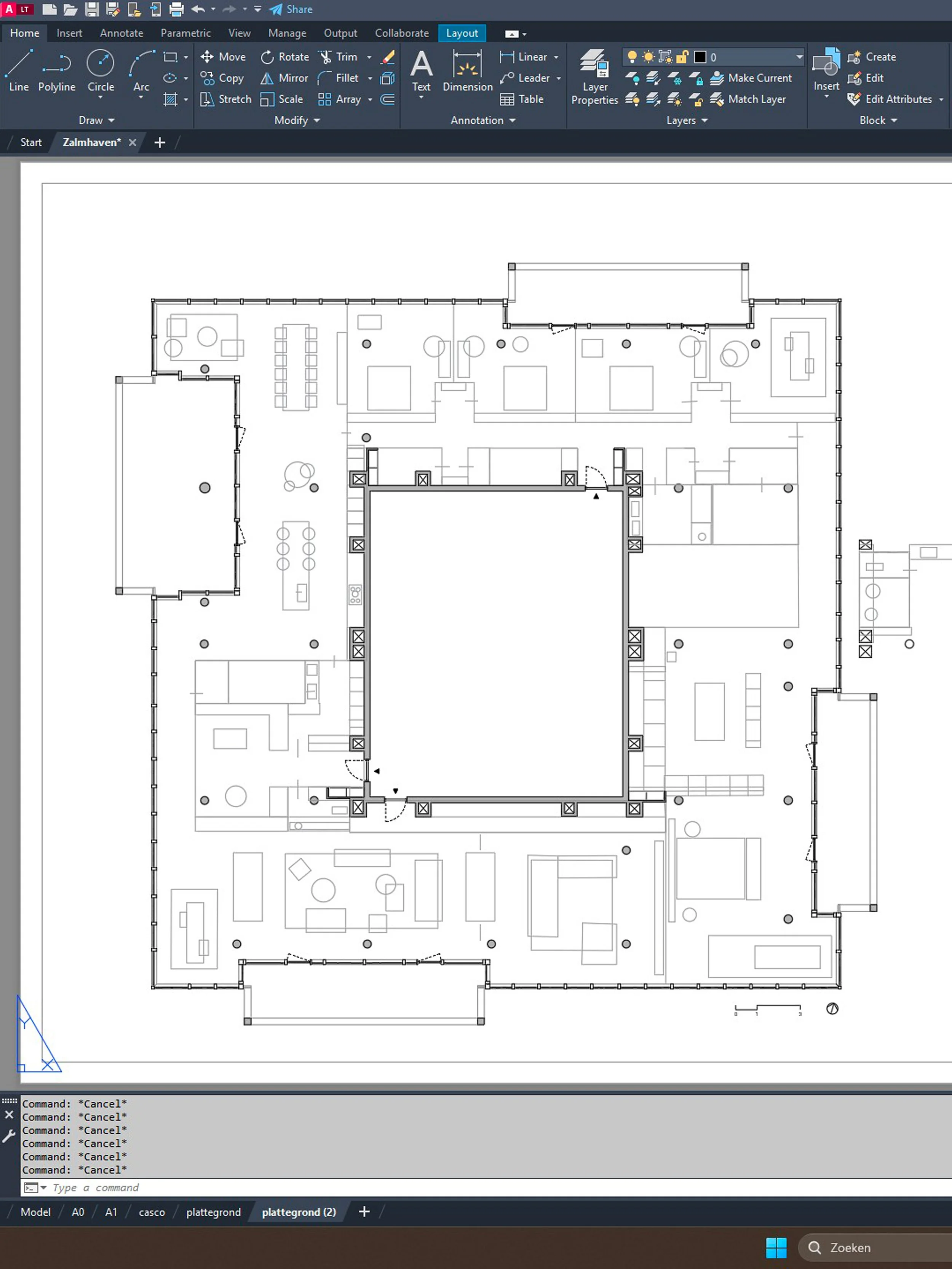
‘Schetsen’ in AutoCad d.m.v. blokken en vlakken, snel structuur aanbrengen in een plattegrond.

3D modelleren in SketchUp, eindeloze variatie in vormgeving.

Vanuit onze passie voor architectuur en interieur delen we graag onze kennis. Of je nou een potentiële opdrachtgever bent, student of gewoon van het vak houdt lees dan gerust onze blogs en doe er je voordeel mee!

Archiefonderzoek als startpunt
Onze eerste stap is het opvragen van archiefstukken bij de betreffende gemeente. Dit is vooral relevant wanneer we werken aan bestaande panden, zeker in historische binnensteden waar monumentale panden vaak bijzondere gebruikshistorie kennen. Tot circa de jaren ’50 werden blauwdrukken gebruikt als reproductiemethode: diepblauwe vellen met witte lijnen die de oorspronkelijke plattegronden tonen. We treffen regelmatig tekeningen aan met imperfecties – van vervaagde lijnen en witte vlekken tot vouwschade. Toch vormen juist deze documenten een cruciale basis. Ze geven ons een inkijk in hoe het gebouw ooit is bedacht, nog voordat verbouwingen of functiewijzigingen hun stempel drukten. Tegelijkertijd laat het ons ook zien hoe sterk een gebouw door de tijd kan transformeren.

Inmeten en digitaal reconstrueren
Na het archiefonderzoek gaan we zelf op pad. We meten het pand grondig in met een lasermeter: wand- en ruimteafmetingen, de hoogteverschillen, de exacte posities van ramen en deuren, alles wordt vastgelegd. Vaak blijkt dat de werkelijkheid afwijkt van de archieftekeningen: wanden zijn verplaatst, doorgangen zijn gemaakt of vloeren zijn verzakt. We nemen dit allemaal mee. Vervolgens vertalen we zowel de archiefstukken als onze eigen metingen naar digitale tekeningen in AutoCAD. We tekenen een zogeheten ‘schone set’: een overzichtelijke, gestripte versie van de huidige situatie zonder vouwlijnen of beschadigingen. Een helder vertrekpunt voor het ontwerpproces.

Van structuur naar strategie
Vervolgens starten we met het conceptueel indelen van de woning. We gebruiken hiervoor een werkwijze die we zelf ‘blokken en vlakken’ noemen. In AutoCAD tekenen we over de bestaande plattegrond heen met eenvoudige gekleurde vlakken die functies voorstellen: wonen, koken, wassen, slapen. Hierbij draait alles om gebruik en routing. Hoe beweeg je je door het huis? Waar laat je je boodschappen? Is een apart toilet praktischer dan één in de badkamer? Wat eerst simpele vragen lijken, blijken vaak onderwerp van intensieve discussies en afwegingen. Door verschillende scenario’s te tekenen en uit te proberen, sluiten we opties uit en werken we toe naar een voorkeursindeling die logisch, efficiënt én persoonlijk aanvoelt.

“Buro Maak: een top bureau. Originele ideeën, zorgvuldig uitgewerkt. Zeer vriendelijk en correct contact met Sander en Merijn. Aanrader als je wilt gaan verbouwen.”

Molly & James

Van blokken naar beleving
Is de indeling gekozen, dan zetten we deze om naar een verzorgde presentatietekening. We tekenen alle wanden met realistische diktes en voegen meubilair toe op schaal. Zo krijgen klanten, en wijzelf, direct gevoel bij de ruimtelijkheid. Het meubilair dat we intekenen is niet willekeurig: we kiezen bewust bestaande producten, zodat de plattegrond niet alleen technisch klopt, maar ook inspireert. Ook vloerafwerkingen worden toegevoegd, zodat het document visueel aansluit bij de sfeer en gebruikservaring die we voor ogen hebben. Het resultaat is een overzichtelijke tekening die als communicatiemiddel werkt, zowel voor de opdrachtgever als voor de uitvoerende partijen.


Plattegrond in 3D: gevoel voor ruimte
De volgende stap is het optrekken van de plattegrond in SketchUp. Dit 3D-model is van onschatbare waarde. Het maakt zichtbaar wat op papier abstract blijft: de werkelijke ruimtelijkheid, zichtlijnen, hoogtebeleving en onderlinge verhoudingen. Het komt regelmatig voor dat een indeling in plattegrond goed lijkt, maar in 3D ineens dissonant aanvoelt. Of juist andersom: een spannende zichtlijn of ruimtelijke overlap blijkt in 3D precies dat wat het ontwerp karakter geeft. Dit stadium biedt ons niet alleen ruimtelijk inzicht, maar ook een nieuwe ronde van optimalisatie.

Materialen en licht: het model komt tot leven
Zodra het 3D-model staat, importeren we het in Lumion. Hier krijgt elk vlak een materiaaltoewijzing. Denk aan houten vloeren, stucwanden, natuursteen werkbladen, textiele gordijnen. Materialisering is minstens zo belangrijk als de indeling zelf: eenzelfde plattegrond met een ander materiaalpalet roept een totaal andere sfeer op. Ook verlichting speelt een hoofdrol. Hoe valt het daglicht binnen? Wat doet kunstlicht ’s avonds? We gebruiken Lumion om deze sfeerbeelden te genereren. Een woonkamer kan warm en geborgen aanvoelen door zacht indirect licht en warme tinten, of juist fris en energiek met lichte materialen en scherpe contrasten. In deze fase maakt het ontwerp de stap van abstractie naar emotie. Hier wordt het voorstel écht tastbaar.


Van ontwerp naar realisatie
Een ontwerp leeft pas echt als het gerealiseerd wordt. Daarom blijven we ook in de bouwfase nauw betrokken. We controleren of het werk op locatie overeenkomt met wat we samen op papier hebben bedacht. Soms vereist dat scherpe communicatie met de aannemer of kleine aanpassingen onderweg. Maar juist die betrokkenheid zorgt ervoor dat het eindresultaat niet slechts een echo is van het ontwerp, maar een waarachtige vertaling ervan. Een ontwerp is pas af als het klopt in de praktijk – tot in het detail.

Samen maken we van ideeën iets bijzonders. Wil je kennismaken of even sparren? Bel ons, mail naar maak@buromaak.nl of vul het formulier hieronder in!